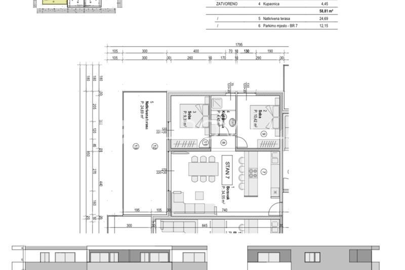
REC ID# 1234584 - POVLJANA