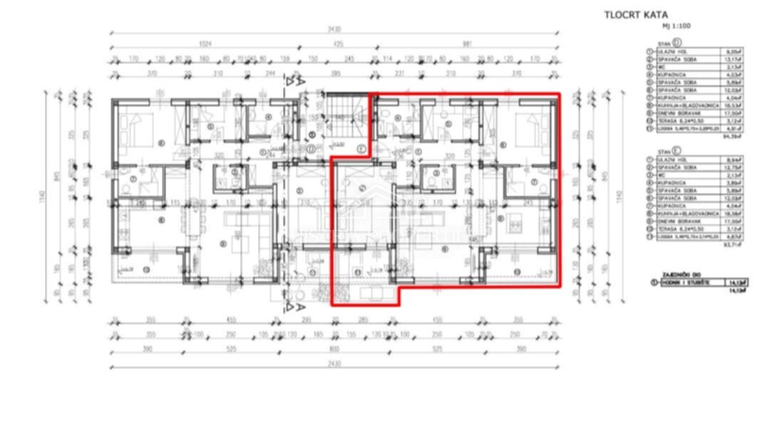
REC ID# 1239154 - POREČ