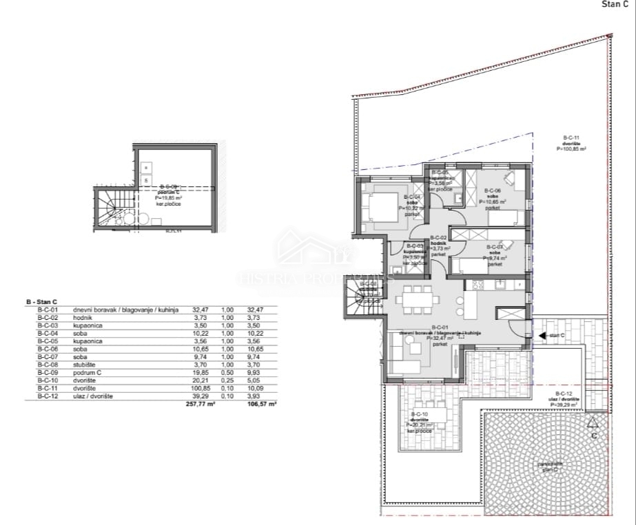
REC ID# 1239145 - POREČ