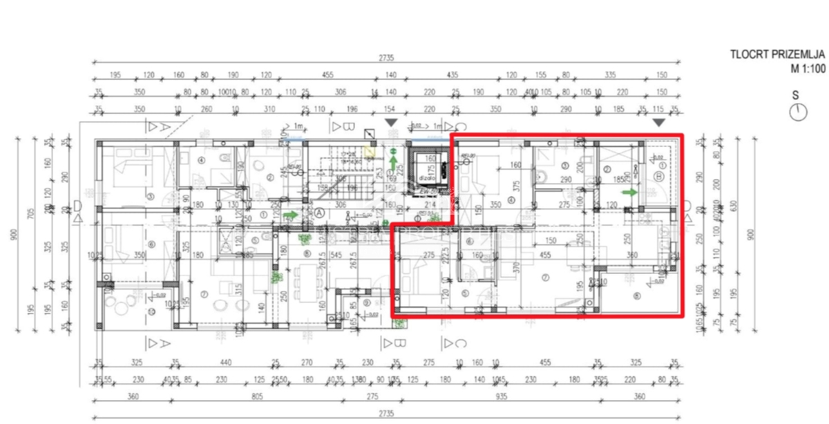
REC ID# 1239108 - POREČ