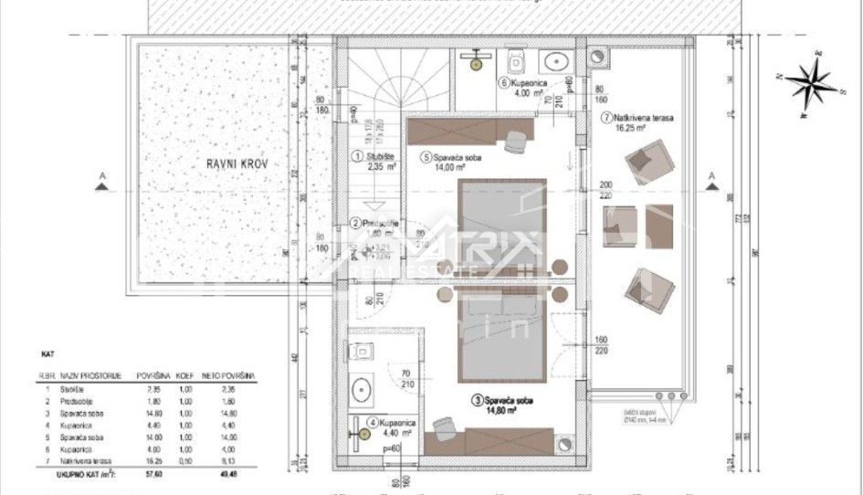
REC ID# 1226413 - POREČ