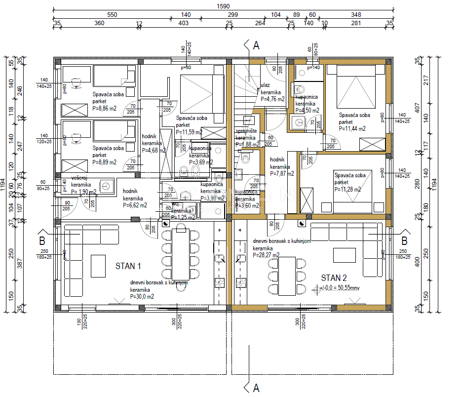
REC ID# 1223292 - POREČ