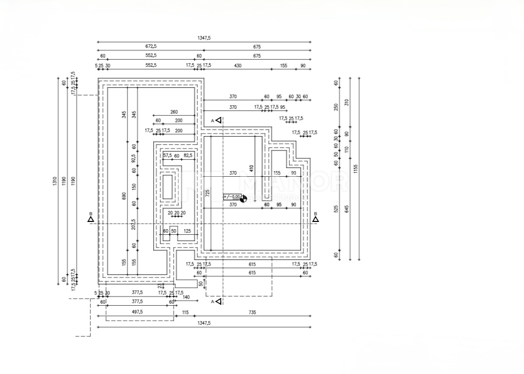
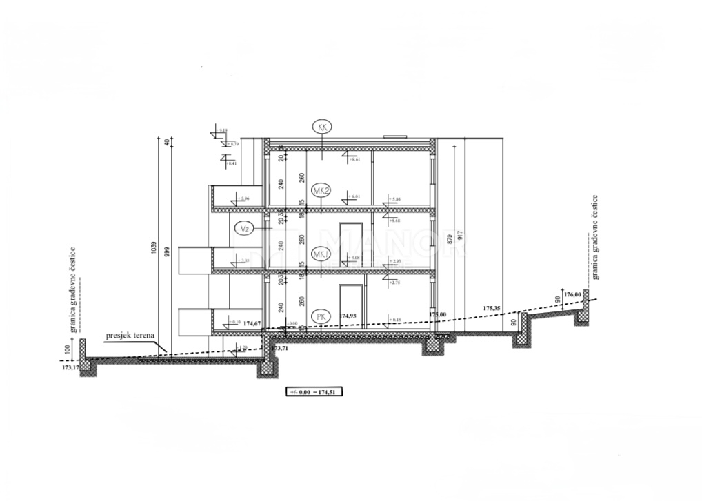
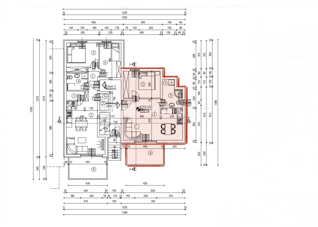
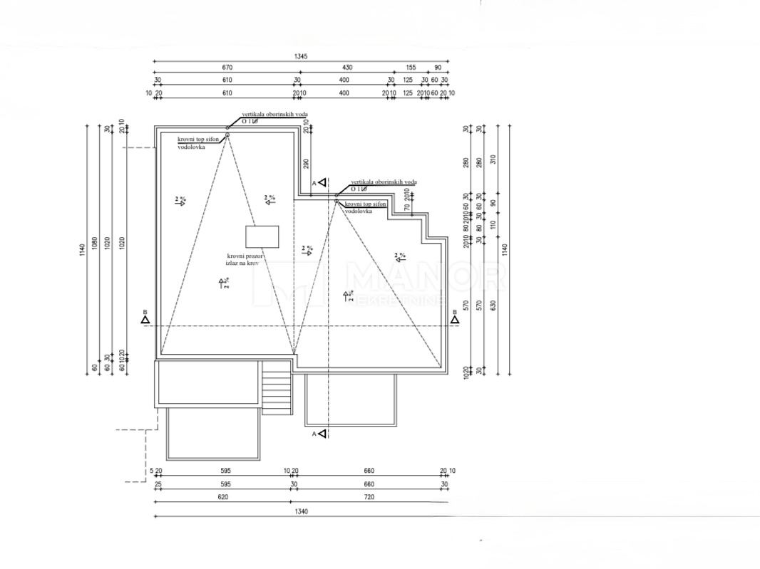
REC ID# 1247606 - PODMURVICE