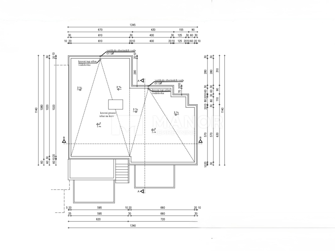
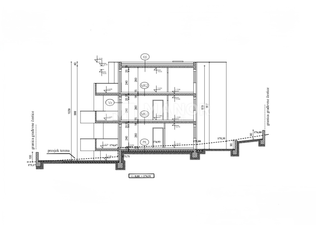
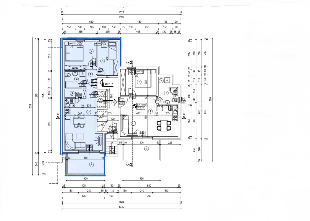
REC ID# 1247605 - PODMURVICE