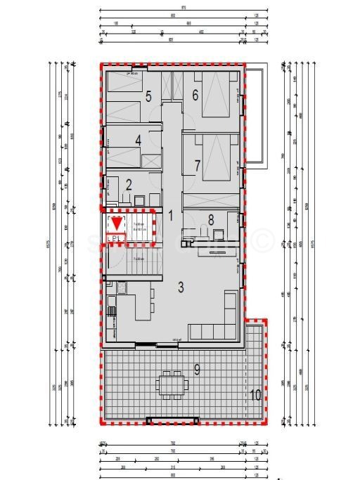
REC ID# 1203998 - GREBAŠTICA