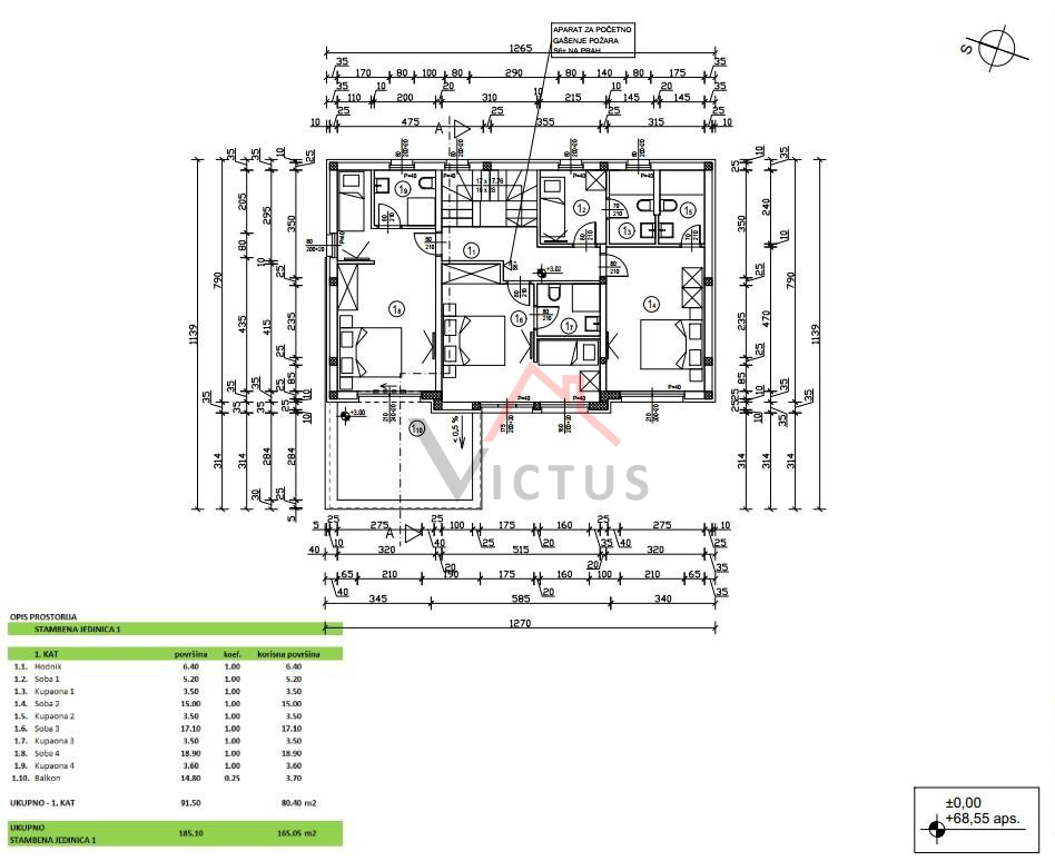
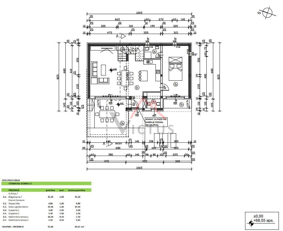
REC ID# 1228764 - CRIKVENICA