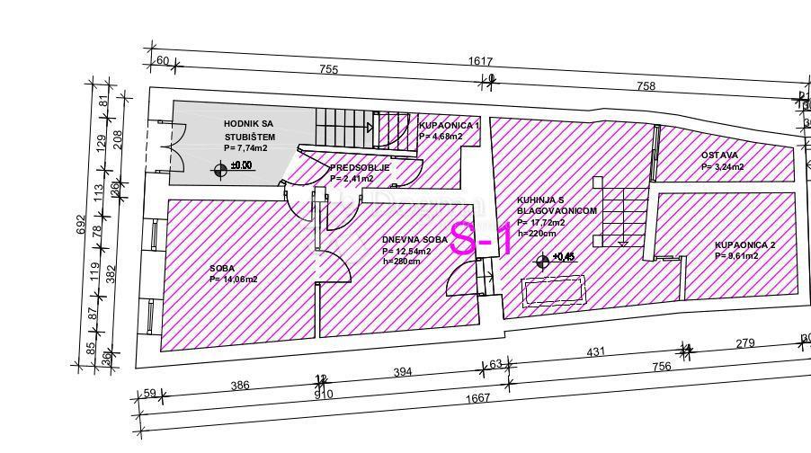
REC ID# 1057366 - CRIKVENICA