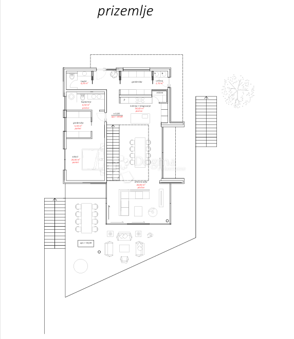
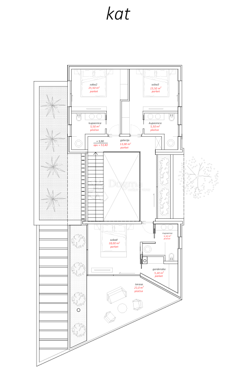
REC ID# 1220555 - ZATON