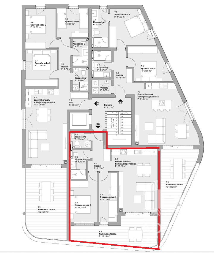
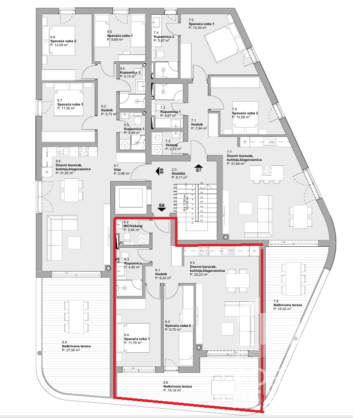
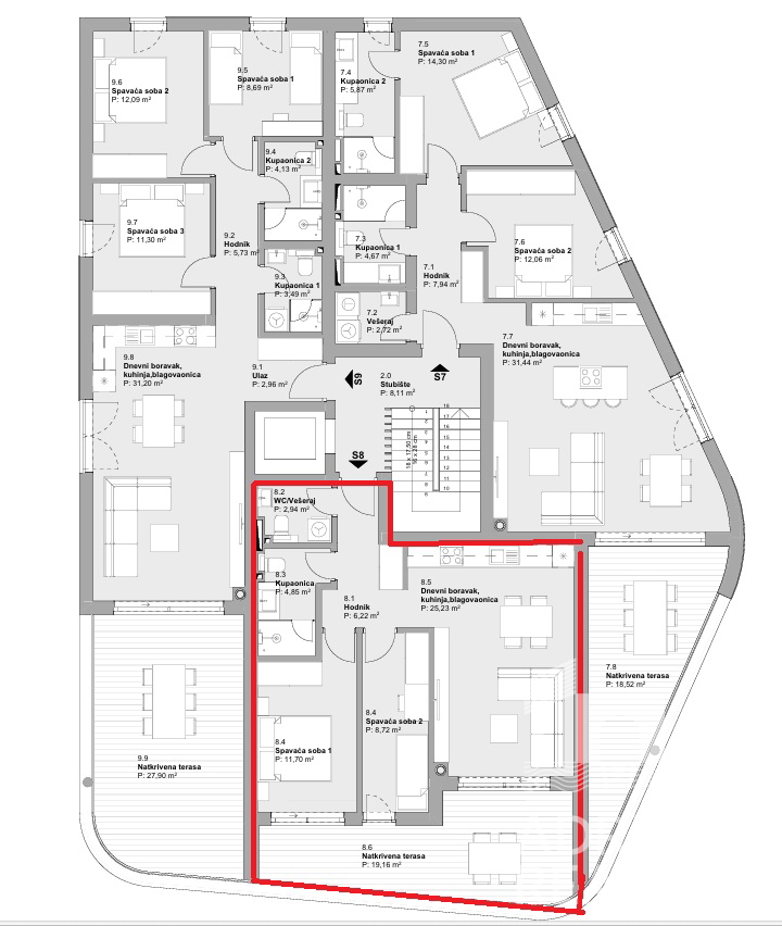
REC ID# 1169050 - VODICE