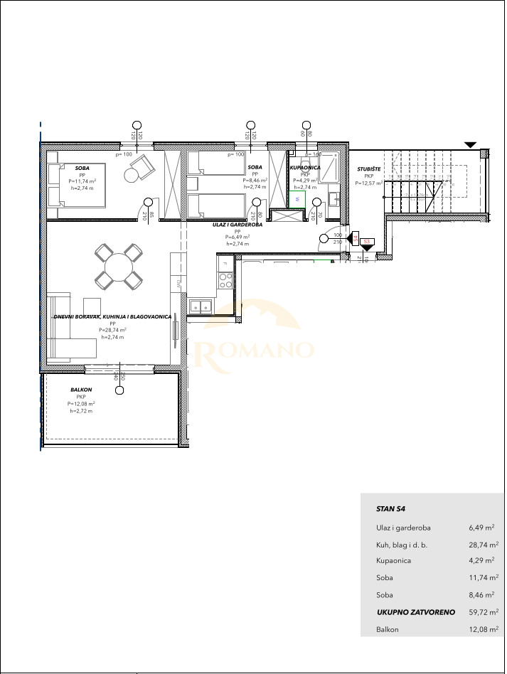
REC ID# 1222557 - TROGIR