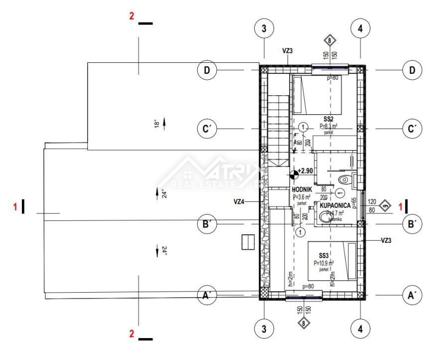
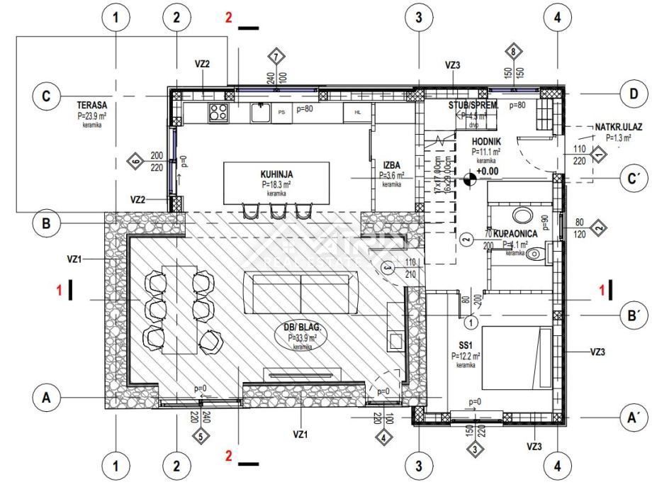
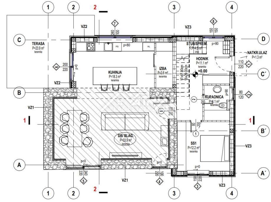
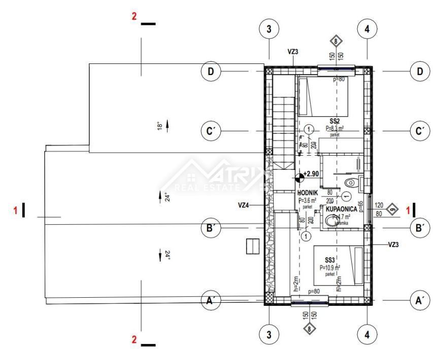
REC ID# 1241749 - SVETVINČENAT