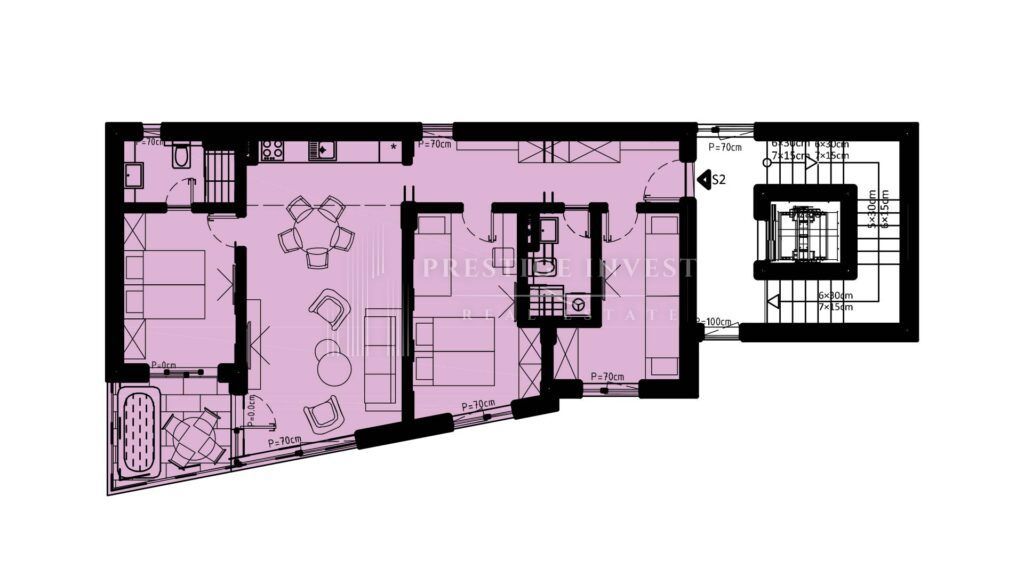
REC ID# 1094280 - SUKOŠAN