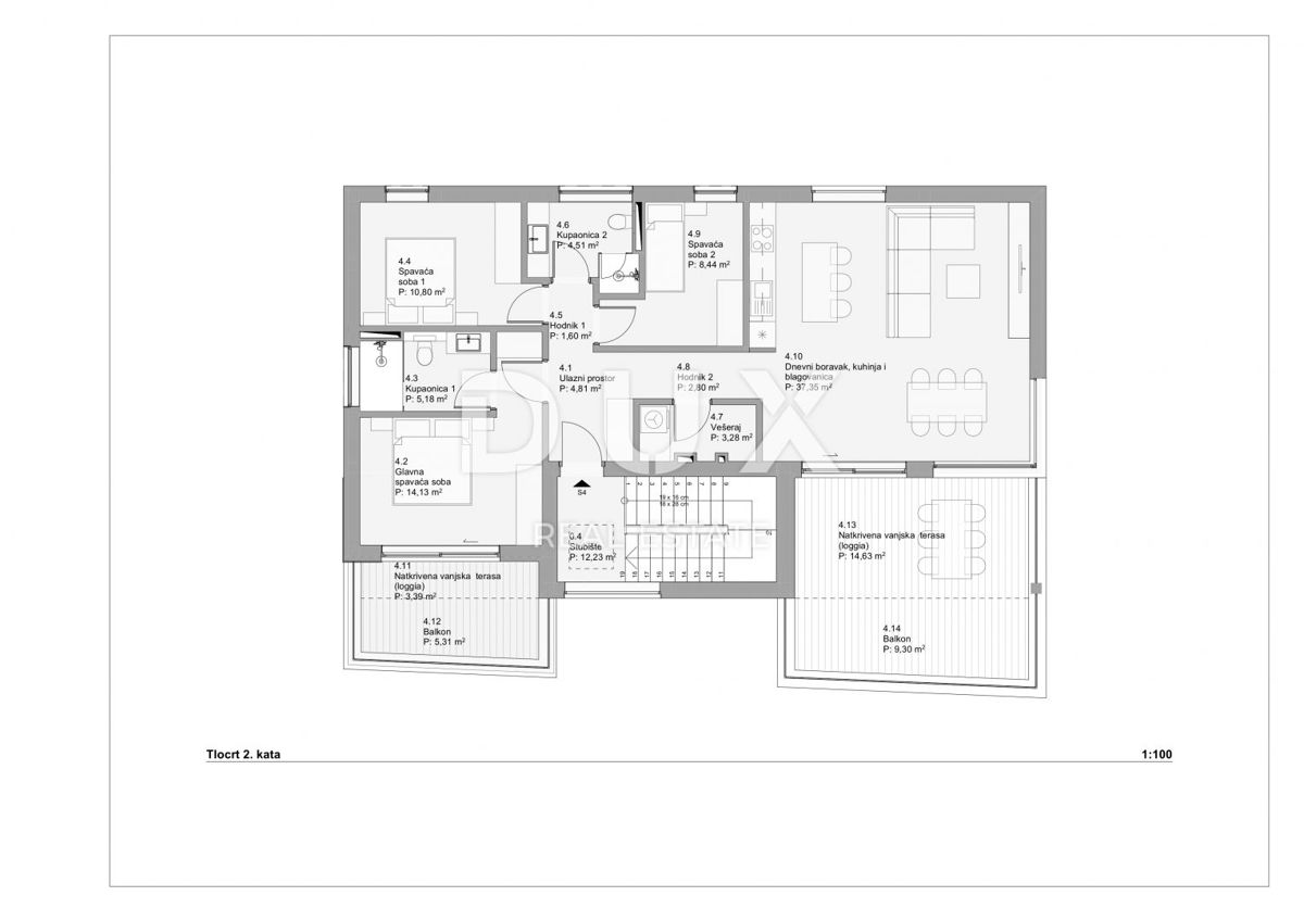
REC ID# 1237942 - POVLJANA