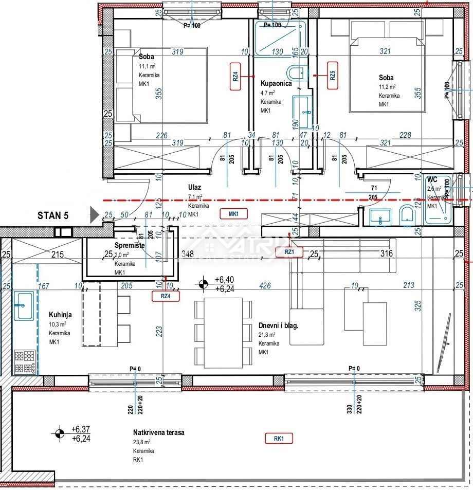
REC ID# 1284122 - POREČ