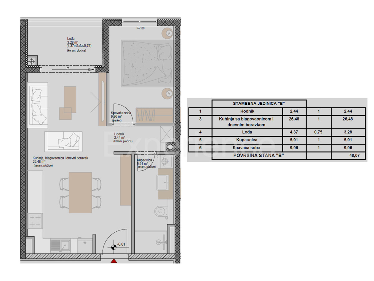
REC ID# 1260845 - POREČ