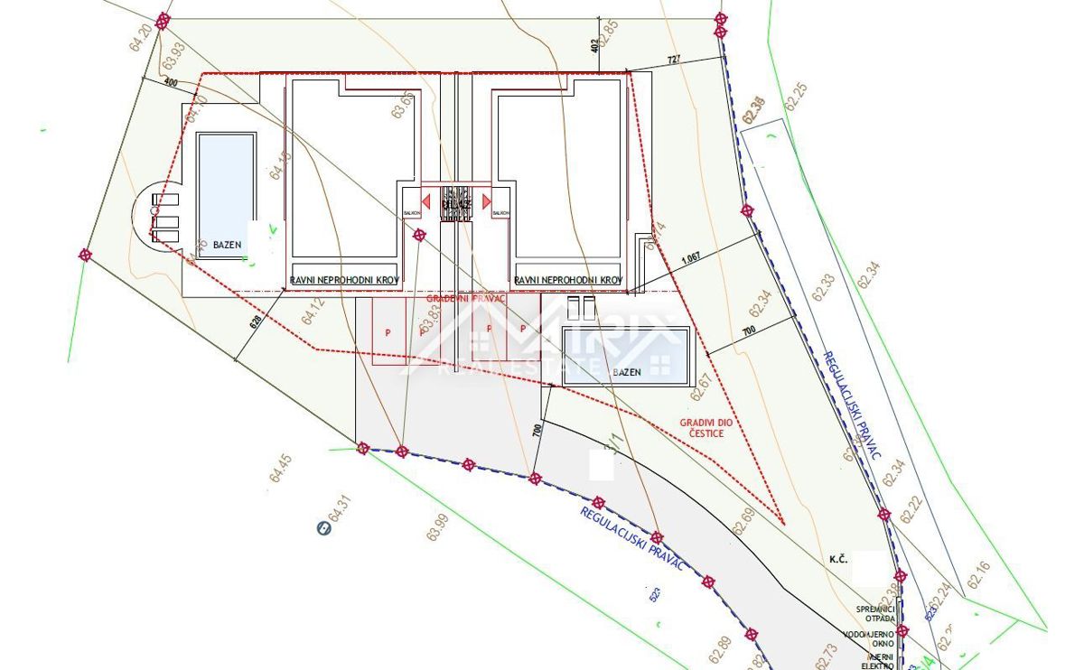
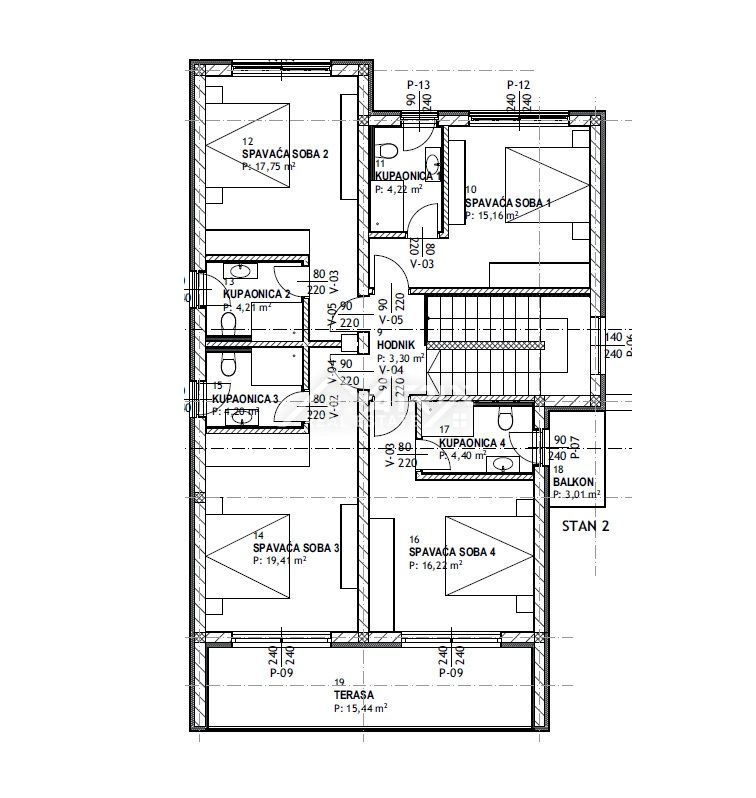
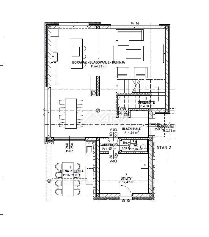
REC ID# 1241752 - POREČ