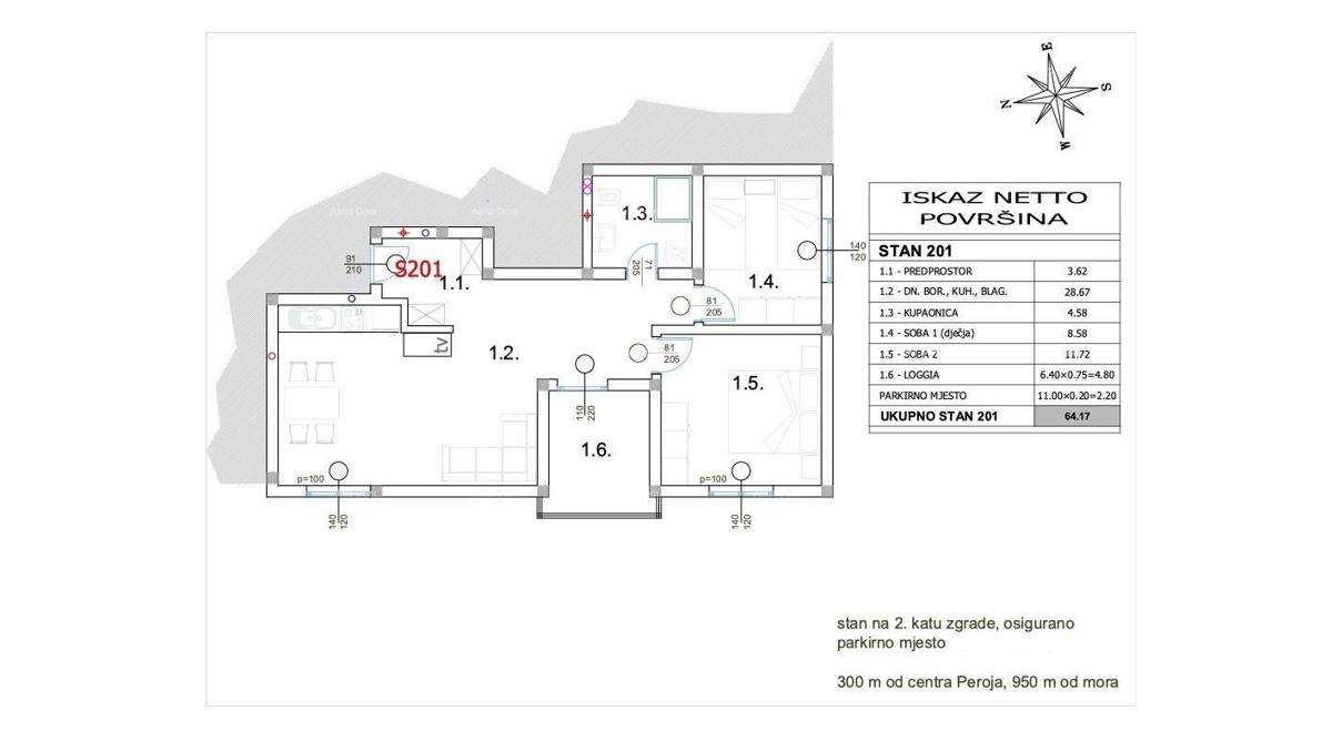
REC ID# 1226352 - PEROJ