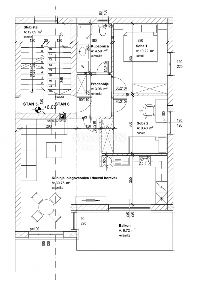
REC ID# 1240250 - MARČELJI