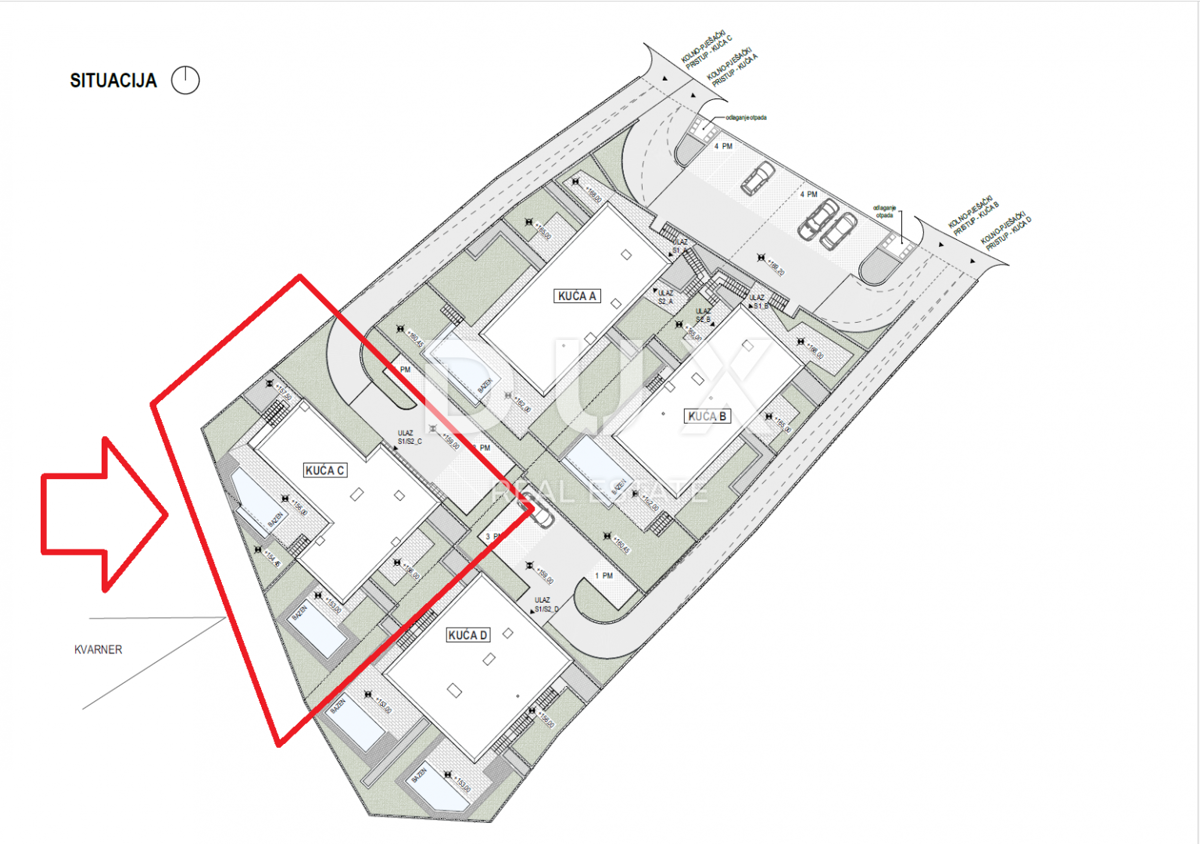
REC ID# 1249857 - KOSTRENA