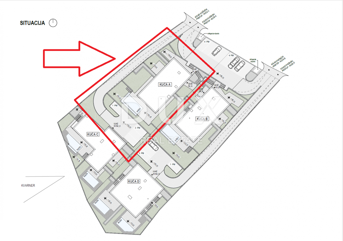
REC ID# 1249856 - KOSTRENA