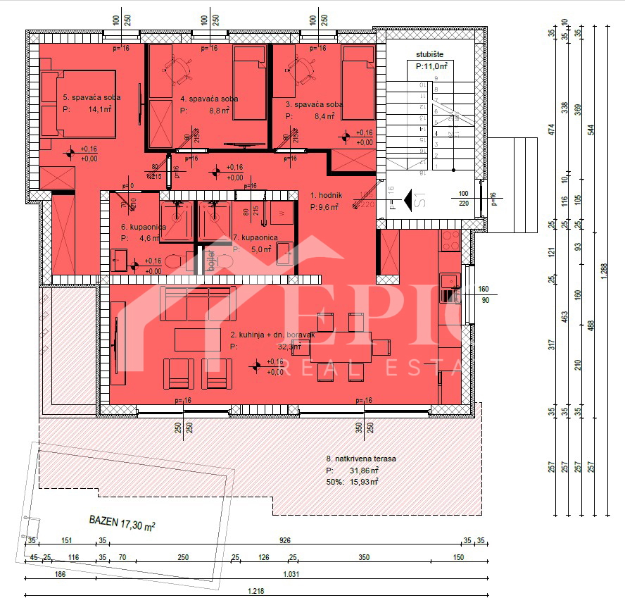
REC ID# 1167431 - KOŽINO