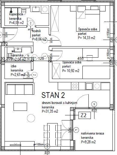
REC ID# 1253939 - KANFANAR