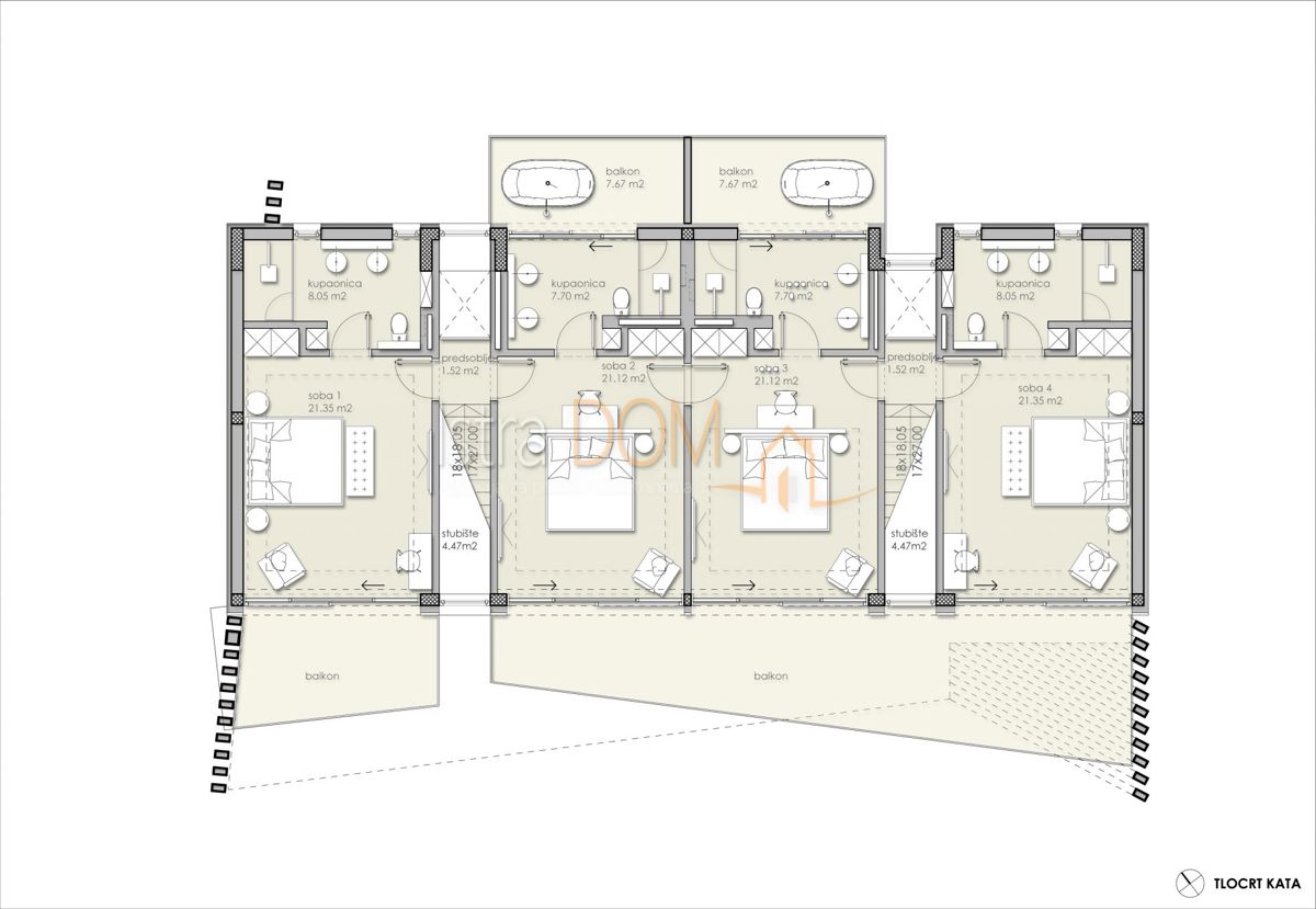
REC ID# 1225576 - KAŠTELIR