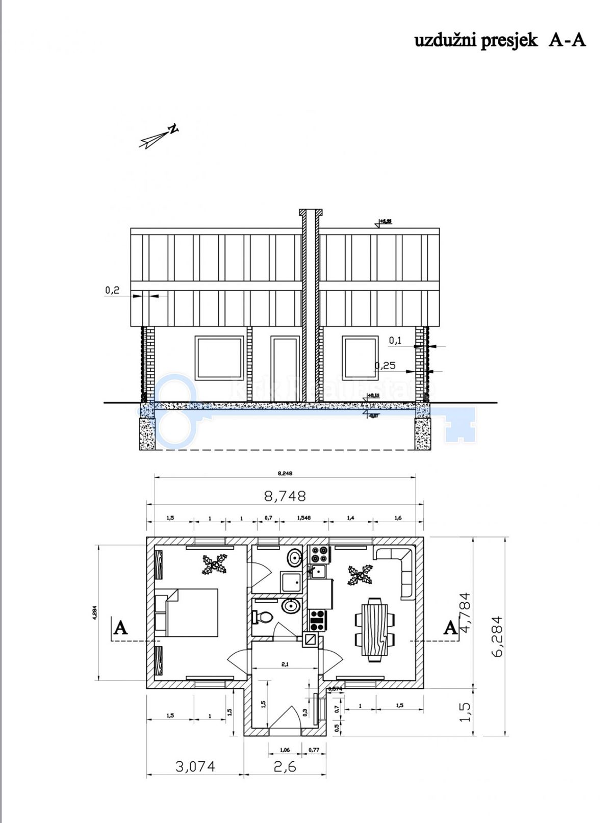
REC ID# 669360 - VRBOVSKO