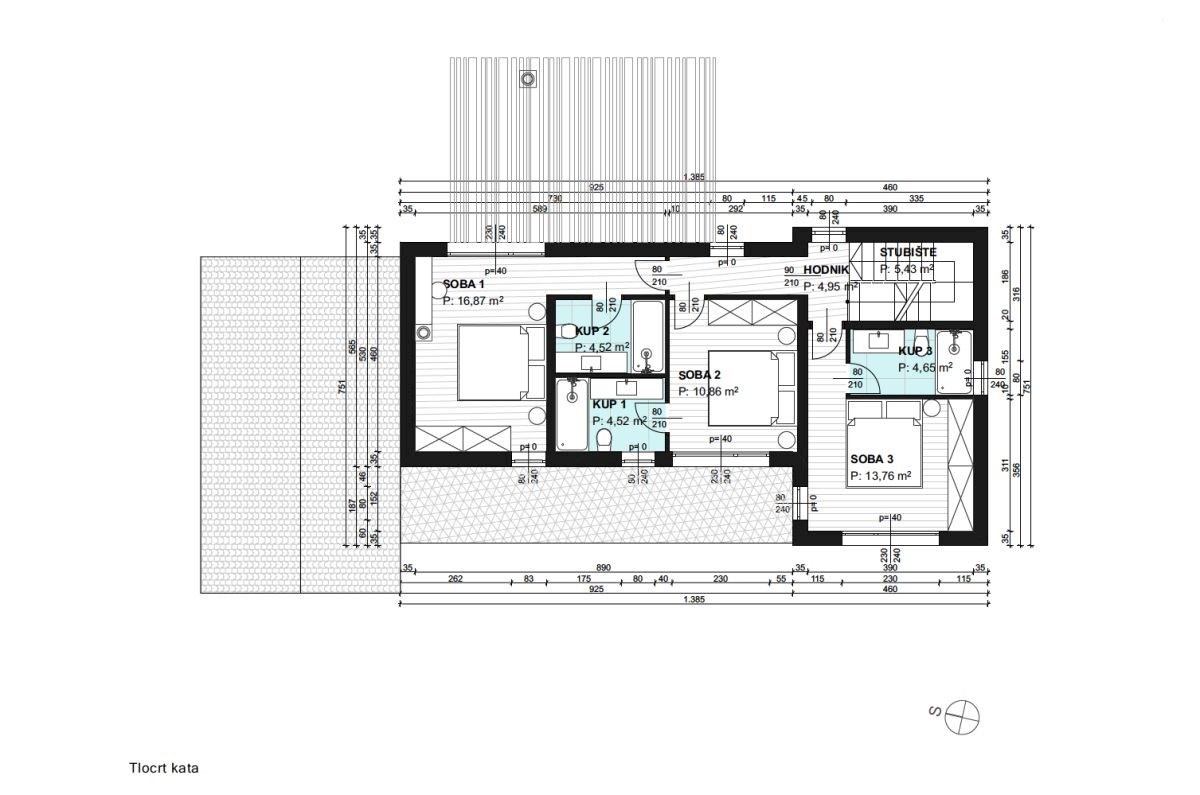
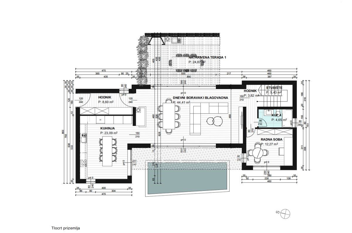
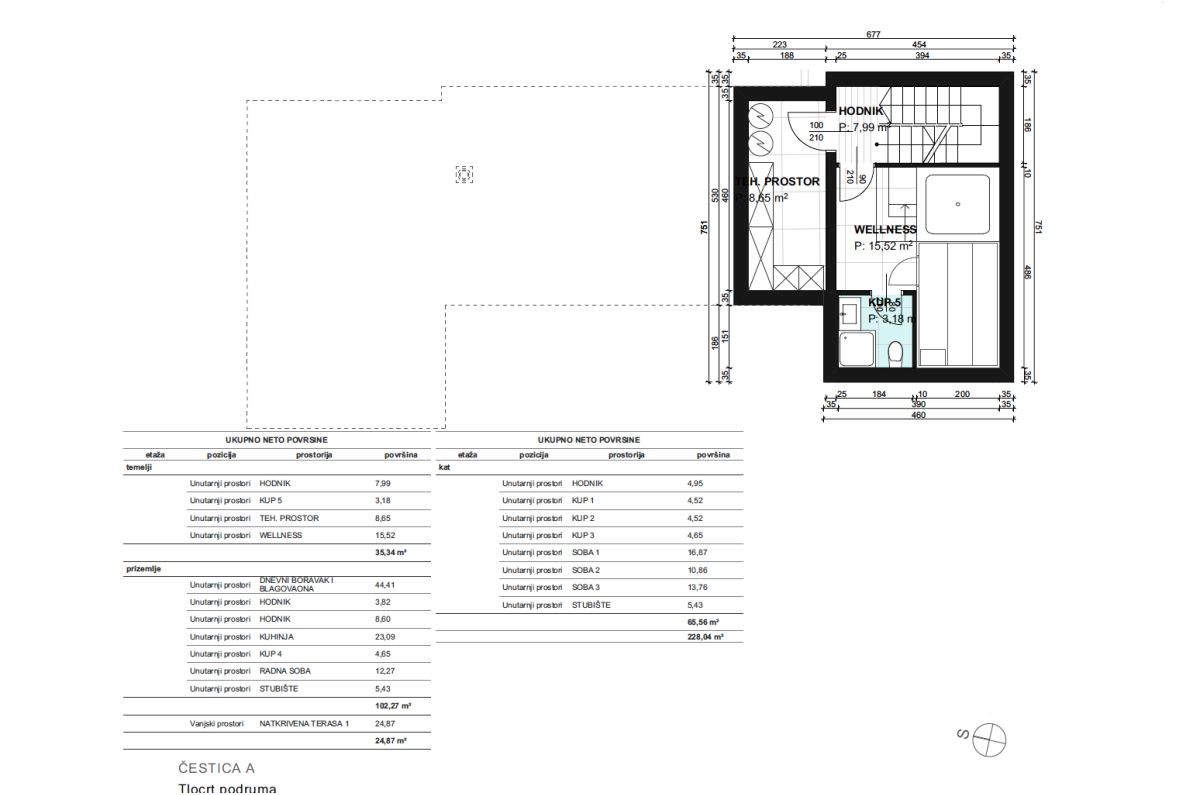
REC ID# 890778 - VRBNIK