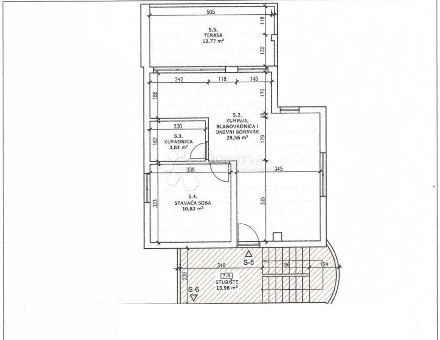
REC ID# 1282773 - SRIMA