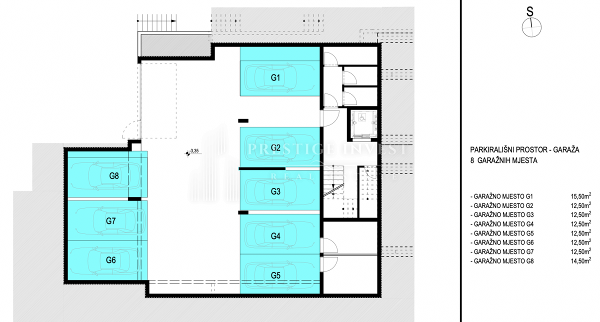
REC ID# 1238990 - PRIMOŠTEN