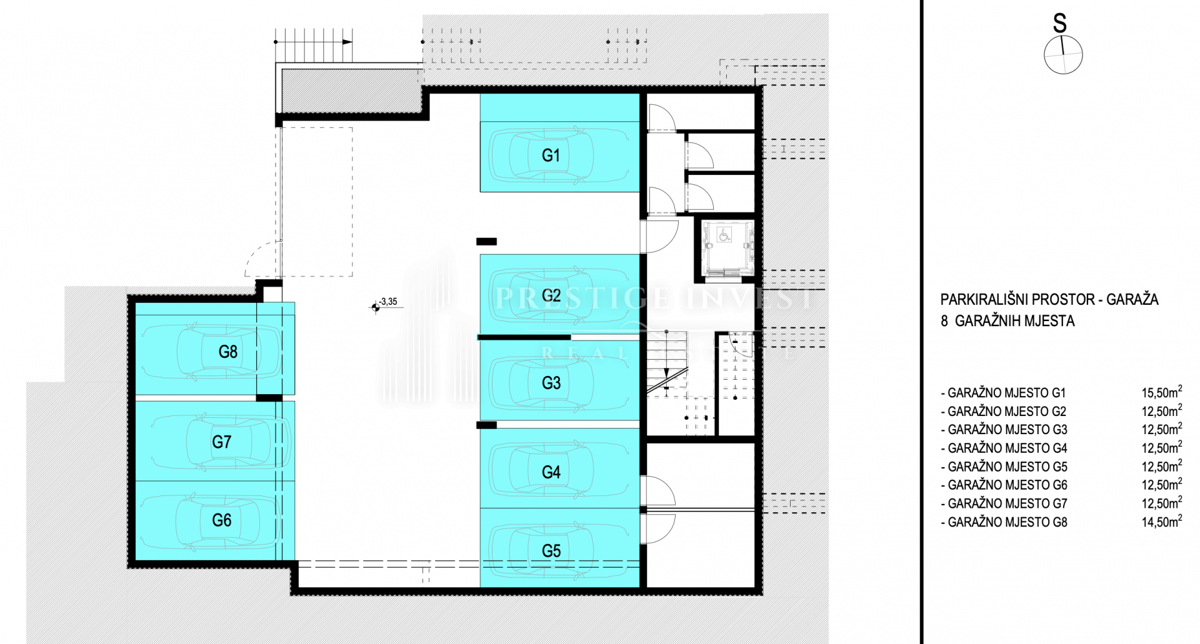
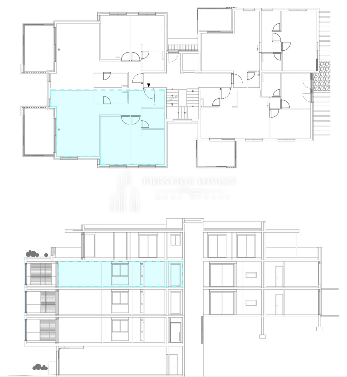
REC ID# 1238988 - PRIMOŠTEN