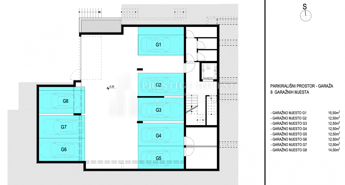
REC ID# 1238987 - PRIMOŠTEN