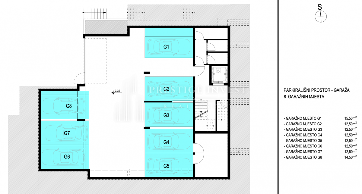
REC ID# 1238985 - PRIMOŠTEN