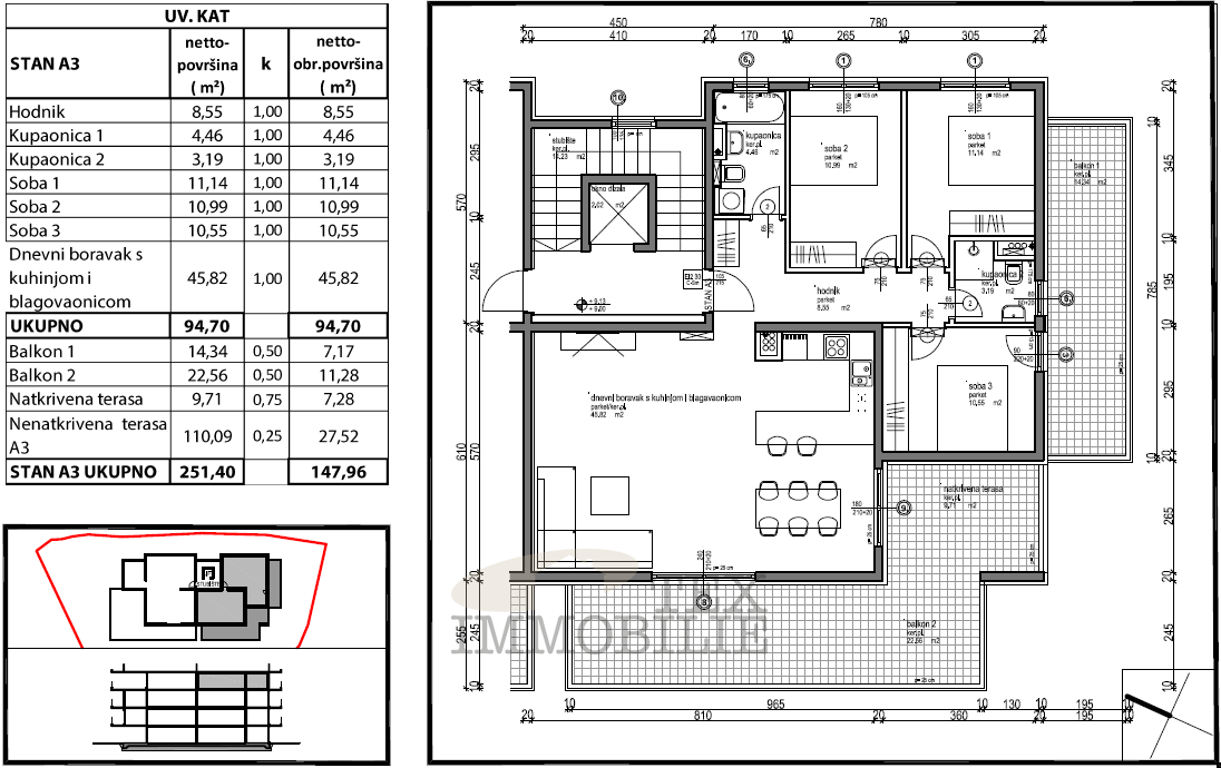
REC ID# 1240606 - POREČ