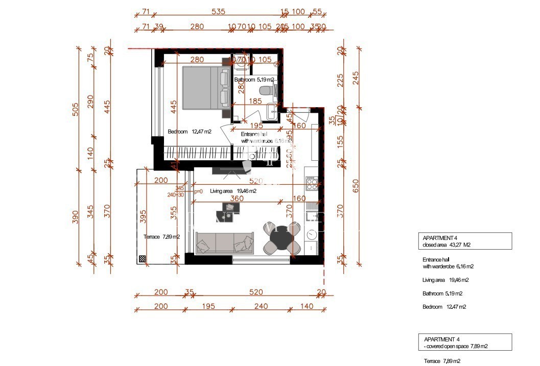
REC ID# 1236450 - POREČ