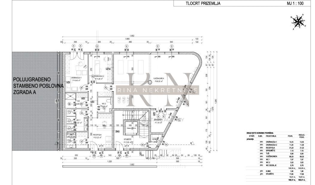
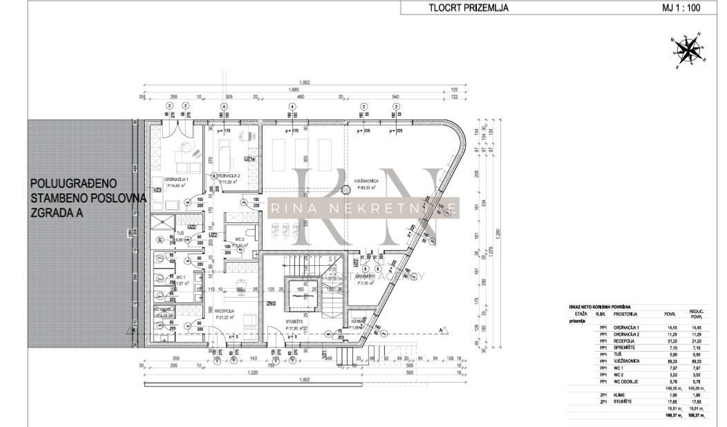
REC ID# 1231981 - POREČ