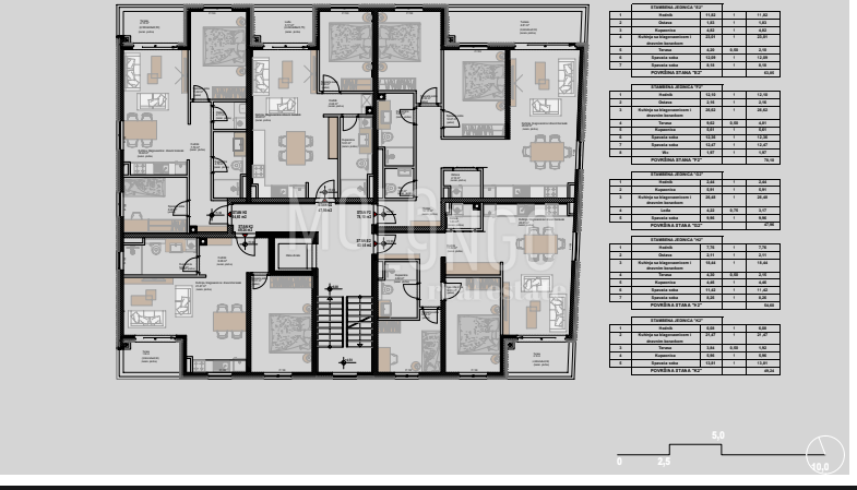
REC ID# 1225401 - POREČ