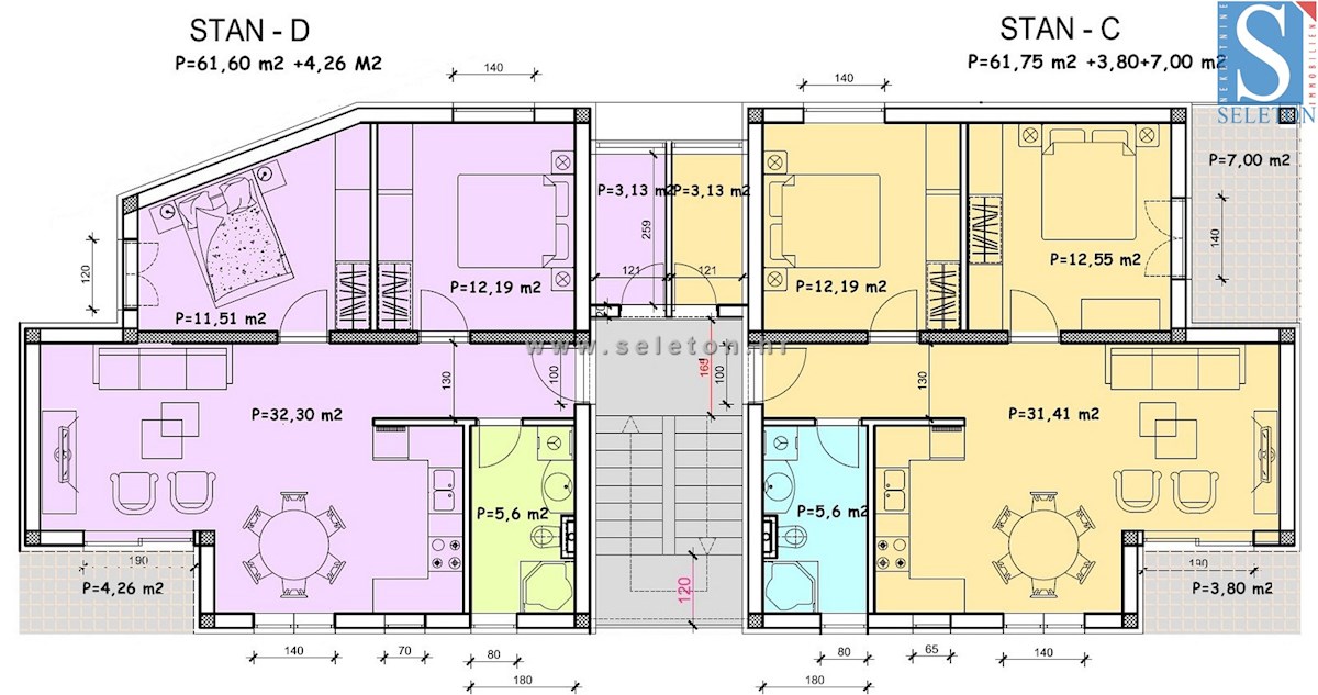
REC ID# 1201448 - POREČ