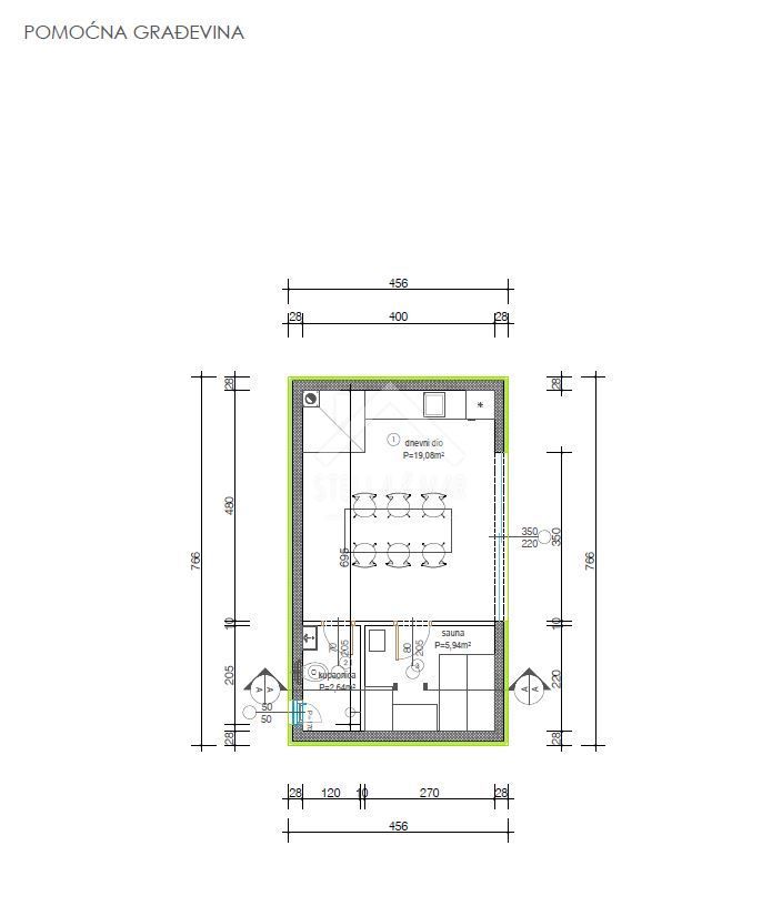
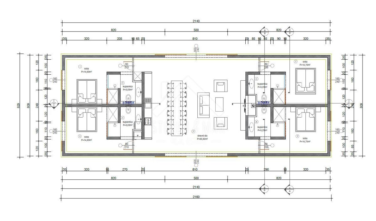
REC ID# 1256139 - POLJICA