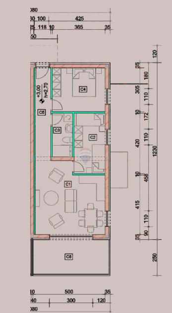
REC ID# 1218767 - OMIŠALJ