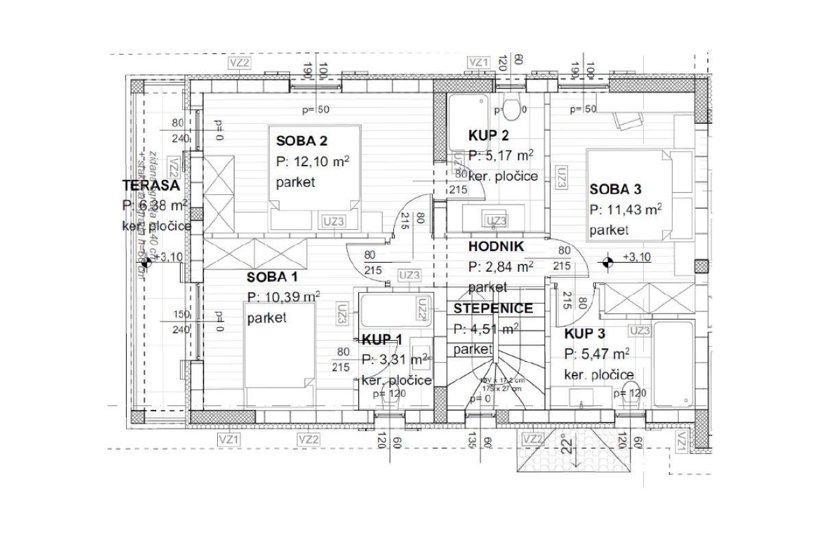
REC ID# 1283137 - MALINSKA