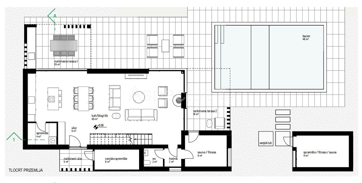
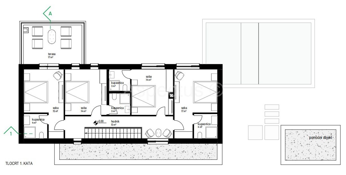
REC ID# 1150552 - LABIN