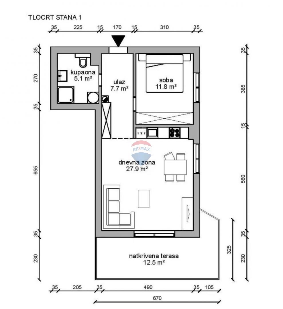
REC ID# 1158898 - KASTAV