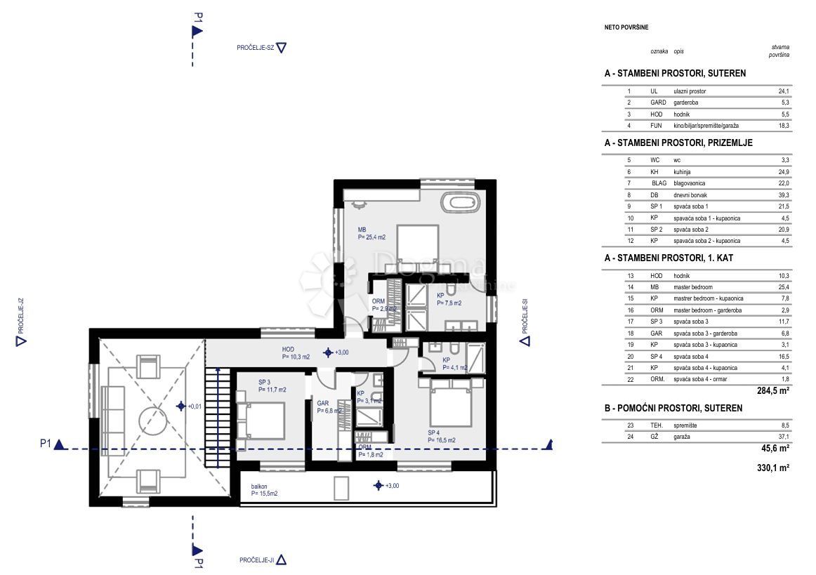
REC ID# 1231762 - KANFANAR