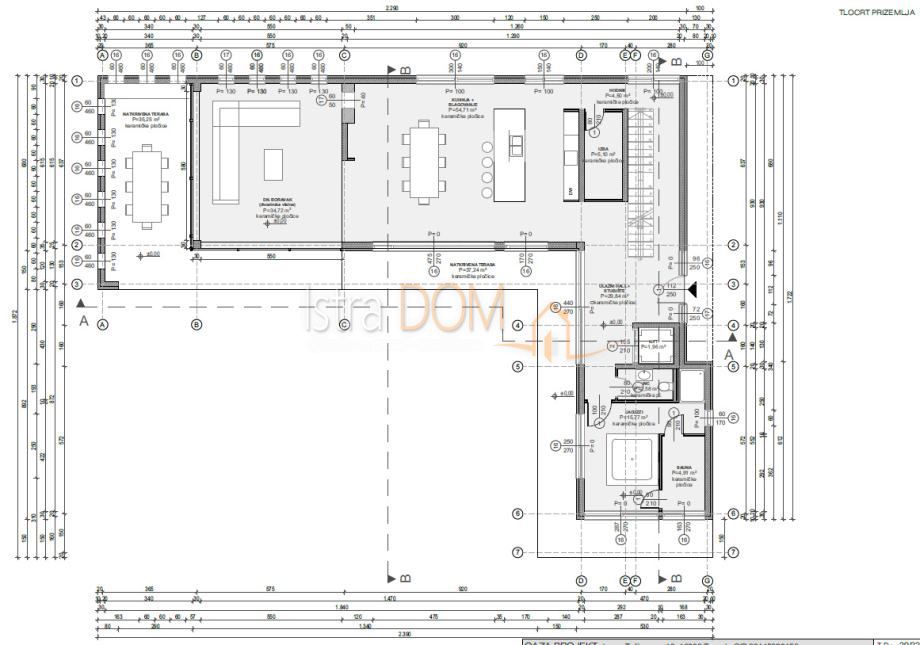
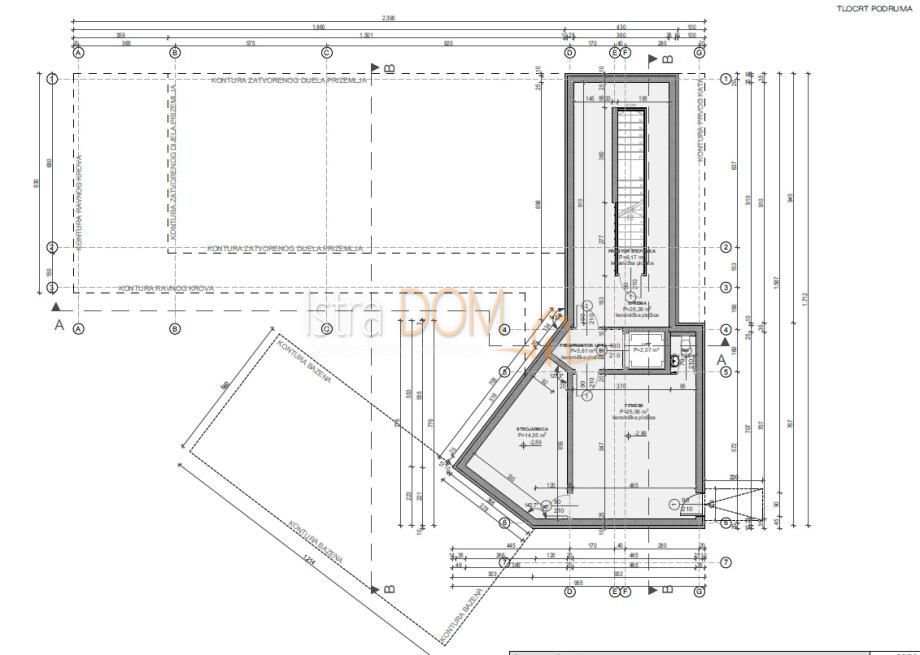
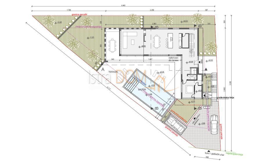
REC ID# 1241133 - GOLAŠ