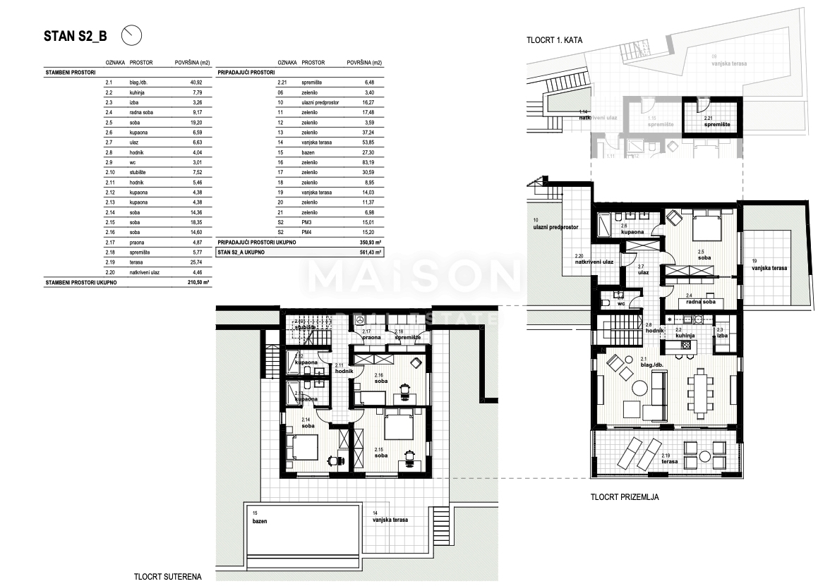
REC ID# 1217540 - GLAVANI