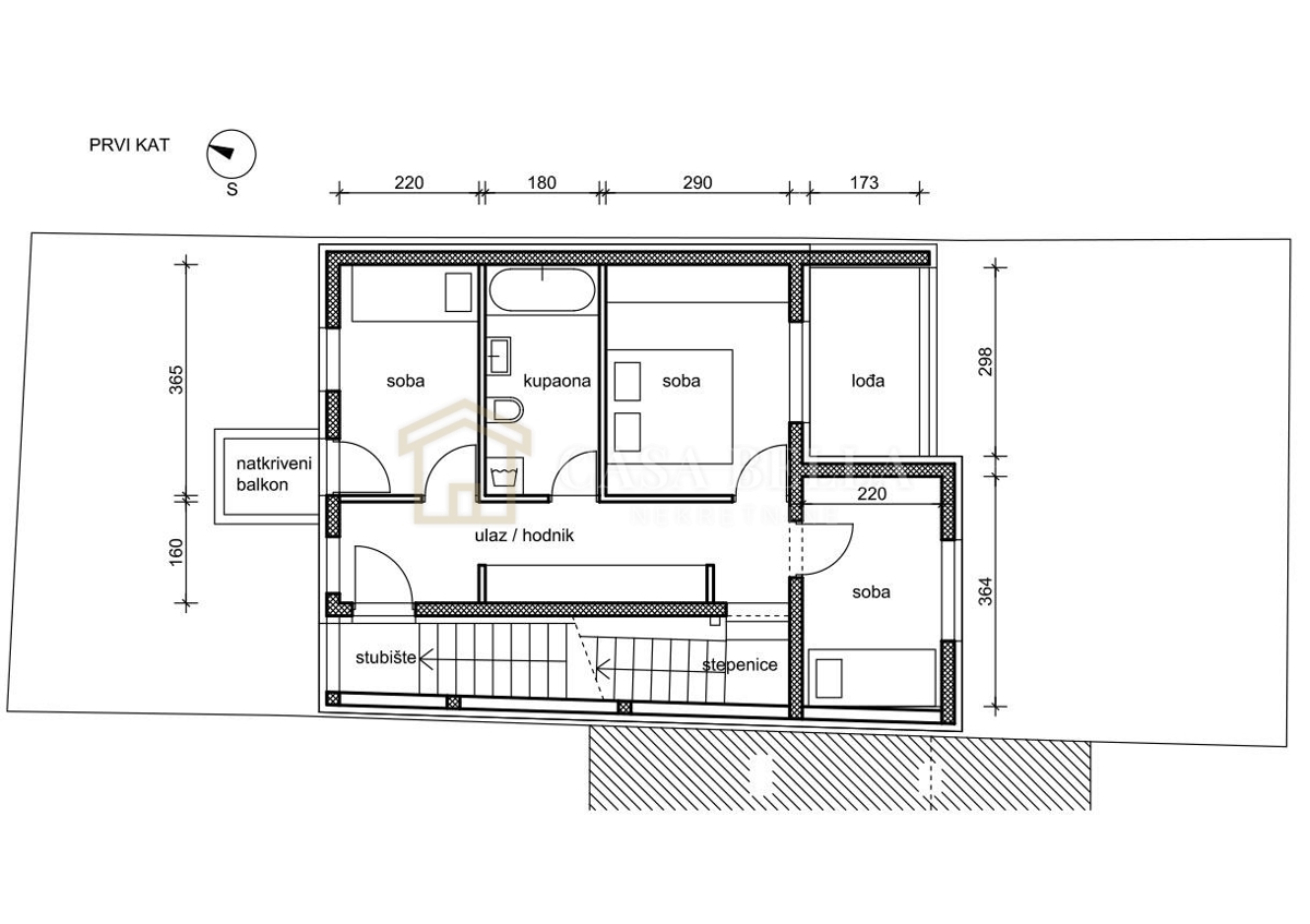
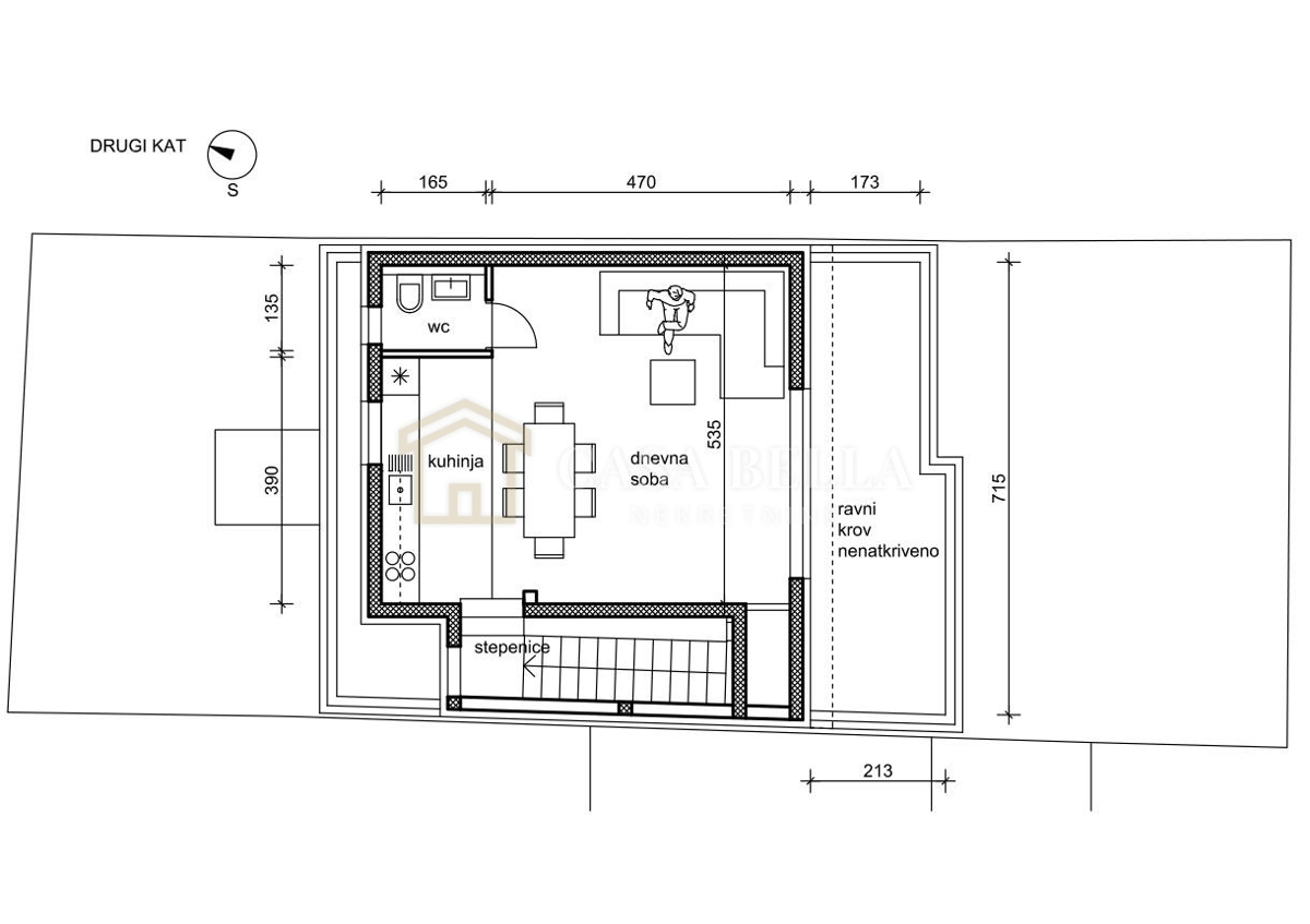
REC ID# 1234433 - DONJA DUBRAVA