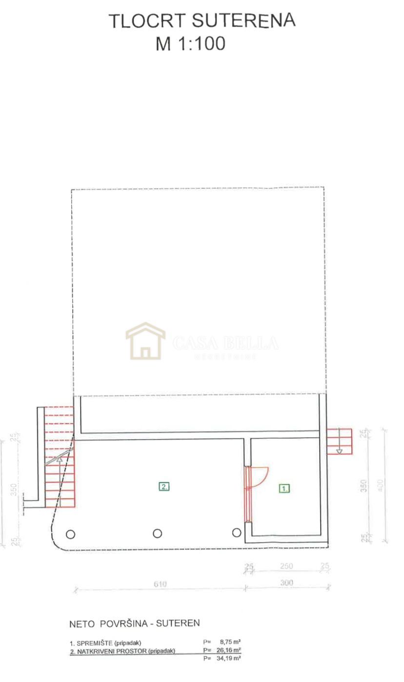
REC ID# 1220363 - CRIKVENICA