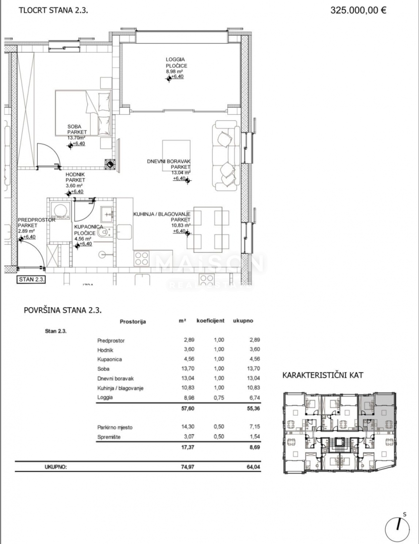
REC ID# 1249984 - CRES